Skan Holz Přístřešek na auto Emsland ALU, ořech, 613 x 604 cm
Číslo výrobku 6244891Popis výrobku
Číslo výrobku 6244891
Přístřešky Skan Holz Emsland poskytují vysoce kvalitní ochranu proti povětrnostním vlivům a jsou vyrobeny ze spárovky (smrkových lepených trámů). Přístřešky na auto s plochou střechou Emsland mají 12 x 12 cm silné sloupky včetně kotevních patek ve tvaru H k zabetonování. Střecha je krytá hliníkovými panely s trapézovým profilem. Zakončení střechy tvoří dřevěná lišta s hliníkovou zakončovací hranou. Součástí dodávky je plastový okapový žlab s okapovým svodem, montážní materiál a návod.
Konstrukce
Konstrukce je vyrobena ze spárovky (smrkových lepených trámů). Tvoří ji několik vysušených vrstev spojených po délce klínovými čepy. Spoje jsou lepené a jsou odolné proti povětrnostním vlivům. Tak vznikne nosný rám, který je oproti dřevu méně náchylný k tvorbě prasklin.
Barevná úprava
Nabarvené části jsou opatřeny vysoce kvalitní lazurou nebo barvou. Ta chrání dřevo proti modrání, poškození UV zářením a omezuje bobtnání a řídnutí. I přesto je struktura dřeva stále viditelná. Díly jsou při výrobě ze všech stran dvakrát polévány lazurou a kartáčovány.
Ihned po dodání, můžete okamžitě začít se stavbou. Odpadá tak únavné penetrování a natírání. V každém balení je přiloženo určité množství barvy nebo lazury k opravám. To využijete zejména při poškození nebo u řezů a šroubových spojů potřebných k montáži.
Pokud chcete povrch ještě dodatečně vylepšit, můžete ještě povrch přebrousit a poté natřít kvalitní lazurou nebo barvou.
Zobrazení barev na fotografii se může mírně lišit od skutečnosti. Stopy od opěr dílů s celoplošným barevných nátěrem, jsou technologicky dané.
Střešní krytina:
Střešní krytina je vyrobena z hliníkových střešních panelů s trapézovým profilem, které jsou natřeny barvou (horní strana antracitová/spodní strana světle šedá). Střecha je nerozbitná a odolná vůči kroupám a vysoce tvarově stálá při vysokých teplotách. Při dešti může být střecha velmi hlučná.
Údaje výrobce
SKAN HOLZ Europe GmbH
Im Alten Dorfe 10
21227 Bendestorf
info@skanholz.com
4018211022519
Technická data
| Vlastnosti výrobku | |
|---|---|
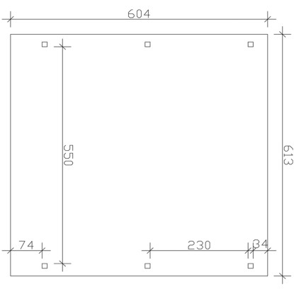
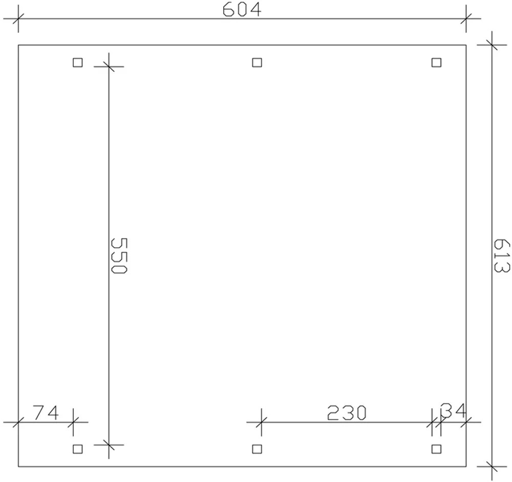
| Základní plocha: | 37,03 m² |
| Šířka (čelní pohled): | 613 cm |
| Výška hřebene: | 248 cm |
| Šířka vjezdu: | 550 cm |
| Výška vjezdu: | 223 cm |
| Tloušťka trámů: | 12 x 12 cm |
| Druh dřeva: | Smrk |
| Materiál konstrukce: | Spárovka |
| Povrchová úprava: | Lazurovaný |
| Zatížení sněhem: | 125 kg/m² |
| Barva: | Ořešák |
| Zastřešení: | Hliníkové střešní desky, barevně lakované |
| Druh: | Přístřešek pro 2 auta |
| Tvar střechy: | Plochý |
| Směr spádu střechy: | Vzadu |
| Počet potřebných základů: | 6 základů |
| Odtok vody: | S okapem a spádovou trubkou |
| Rozměry a hmotnost (netto) | |
|---|---|
| Hmotnost: | 766,0 kg |
| Výška: | 2,48 m |
| Šířka: | 6,13 m |
| Hloubka: | 6,04 m |

















